Ste firma? Registrujte sa pre lepšiu cenu.

ATS-3-AGS-LEFT/RIGHT-ZKIT

Came drive for single-leaf gate, set with photocells

Mark: Came, Max. wing length: 3m, Recommended weight of the wing: 200kg, Frequency (MHz): 433, End point: No need end points, Code type: Multi (fix/rolling), Parts of the set: ATS30AGS-1x, ZF1N-1x, AF43S-1x, TOP432EE-1x, DIR10-pár, Motor power supply: AC 230V, Performance: 250W, Force: 400-3000N, Speed: 90° - 15s, Power supply: AC 230V, Controller: ZF1, Capacitor: 10uF

€343,95
without VAT
€423,06
with VAT


SET
Stock availability
SK Krompachy > 10
SK Banská Bystrica 0
SK Bratislava R1 0

Kontakt

Add some general information about your delivery and shipping policies.

lubomir.petruska@umakov.sk
+421915093533 +393483490444

Popis

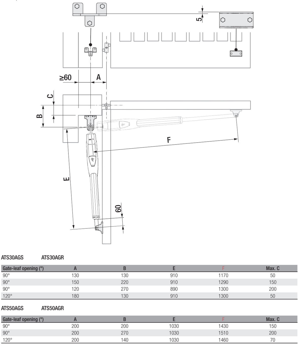
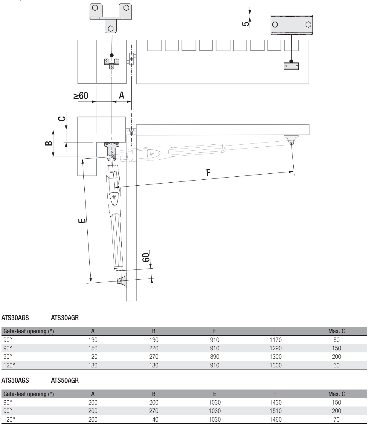
Possibility to anchor the drive on a wide post, the distance from the axis of the gate wing hinge to the edge of the post can be up to 200mm.

Parametre

Mark
Information about producer of product
Came
Max. wing length
Maximum wing length for the given drive
3m
Recommended weight of the wing
Odporúčaná hmotnosť krídla brány pre správnu funkčnosť pohonu.
200kg
Frequency (MHz)
Určuje frekvenciu ovládača a riadiacej elektroniky.
433
End point
Information about the need for gate end stops with the selected drive.
No need end points
Code type
Typ kódu pre správnu kombináciu ovládača s elektronikou.
Multi (fix/rolling)
Parts of the set
null
Power supply
Type and value of the power supply voltage
AC 230V
Motor power supply
Type and value of the motor supply voltage
AC 230V
Performance
250W
Force
400-3000N
Speed
Parameter of the drive feed speed
90° - 15s
Controller
ZF1
Capacitor
10uF

Časti zostavy

CAME drive for swing gate ATS-30-AGS

1 pcs
Mark
Came
Max. wing length
3m
Recommended weight of the wing
200kg

Radio card 433,9 MHz AF-43-S

1 pcs
Mark
Came

Remote controller CAME TOP fix code, 2CH, CAME TOP-432-EE

1 pcs
Mark
Came
Frequency (MHz)
433
Code type
Fix

Photocell for plaster montage max. 10m DIR-10

1 pcs
Mark
Came
Power supply
12-24V AC
Protection level
IP54

Katalog

Came pohon pre jednokrídlovú bránu, sada s fotobunkami
umakov-sk

Came drive for single-leaf gate, set with photocells

€343,95
Possibility to anchor the drive on a wide post, the distance from the axis of the gate wing hinge to the edge of the post can be up to 200mm.
View product